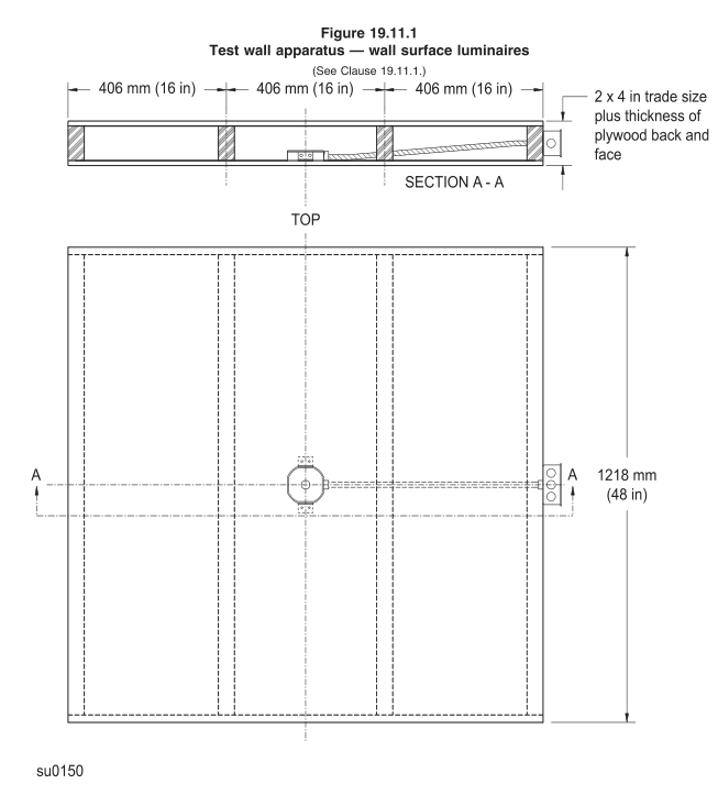
Temperature Rise Test Wall Apparatus for Wall Surface Luminaires

Temperature Rise Test Wall Apparatus for Wall Surface Luminaires

Product No: LS-B74

Leave a Message






    captcha

    Description

    The LS-B74 Temperature Rise Test Wall Apparatus for Wall Surface Luminaires is engineered to meet the rigorous demands of testing wall-mounted lighting products. It is specifically crafted to evaluate the temperature rise performance of luminaire equipment. This apparatus integrates compliant junction boxes, wiring, and support components, accurately simulating the operational environment of wall-installed lighting. With movable brackets and casters, its positioning can be easily adjusted, enhancing laboratory testing and equipment management. The use of standardized board materials, wood, and wiring configurations ensures a consistent and stable testing environment, providing a reliable platform for precise temperature rise data acquisition during actual operation. Standards: UL 1598:2024 Standard for Safety for Luminaires. The UL 1598 temperature rise test wall adheres to the following structural specifications: (1) Front and back dimensions are 1218mm × 1218mm, with 12mm thick plywood or veneer. (2) Side timber measures 2 inches (50.8mm) x 4 inches (101.6mm), thickness not visible. (3) End timber measures 1 inch (25.4mm) x 4 inches (101.6mm), thickness visible. (4) Internal support timber is 2 inches (50.8mm) x 4 inches (101.6mm), thickness not visible. (5) Equipped with a standard 4-inch x 1-1/2-inch octagonal junction box with UL certification, imported from the United States. (6) External junction box installation is required on the side. (7) Internal conduit is 3/8″ metal conduit. (8) Wiring includes one white and one black 14AWG wire and one 16AWG or thicker wire for grounding. (9) Unlike the temperature rise test ceiling, the test wall excludes insulating fiberglass. (10) The bottom of the test wall must be at least 0.9 meters above the ground and at least 0.3 meters above the ceiling. The 1×4 timber should be positioned horizontally.